Detailzeichnungen und Profilschnitte von DRUTEX-Fenstern

Planen Sie Ihr Bauvorhaben mit Präzision!
Fenster, die perfekt passen, tragen maßgeblich zur Energieeffizienz, Schalldämmung sowie Wind- und Wasserdichtigkeit Ihres Gebäudes bei. Eine sorgfältige Planung ist die beste Grundlage für den erfolgreichen Einbau. Besonders hilfreich dabei: Detailzeichnungen, Profilschnitte und CAD-Pläne der Fenster- und Türelemente.

Wir stellen Ihnen für alle unsere DRUTEX-Profilsysteme die passenden technischen Unterlagen zur Verfügung – geordnet nach Material und System:

Profilschnitte nach Materialsystemen

fenstermaxx-drutex-iglo-5-fenster-50001-50013-50924-120

Iglo 5

mehr erfahren
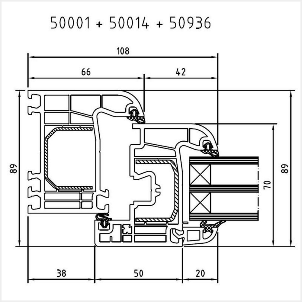
fenstermaxx-drutex-iglo-light-querschnitt-50001-50014-50936-245

Iglo Light

mehr erfahren
fenstermaxx-drutex-iglo-energy-classic-schnitt-70001-70013-70948-172

Iglo Energy

mehr erfahren
fenstermaxx-drutex-iglo-hs-tuer-rahmen-mit-schiebefluegel-225

Iglo HS

mehr erfahren
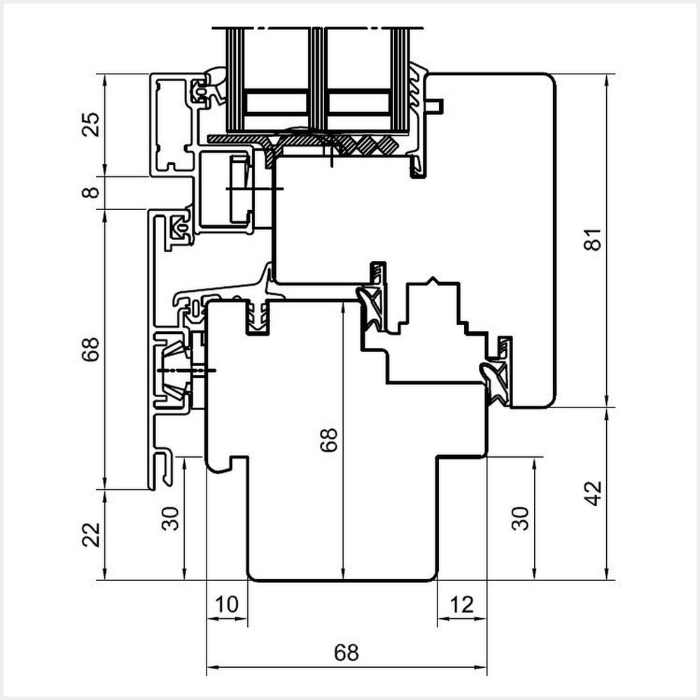
fenstermaxx-drutex-softline-68-rahmen-mit-fluegel-453

Softline 68

mehr erfahren
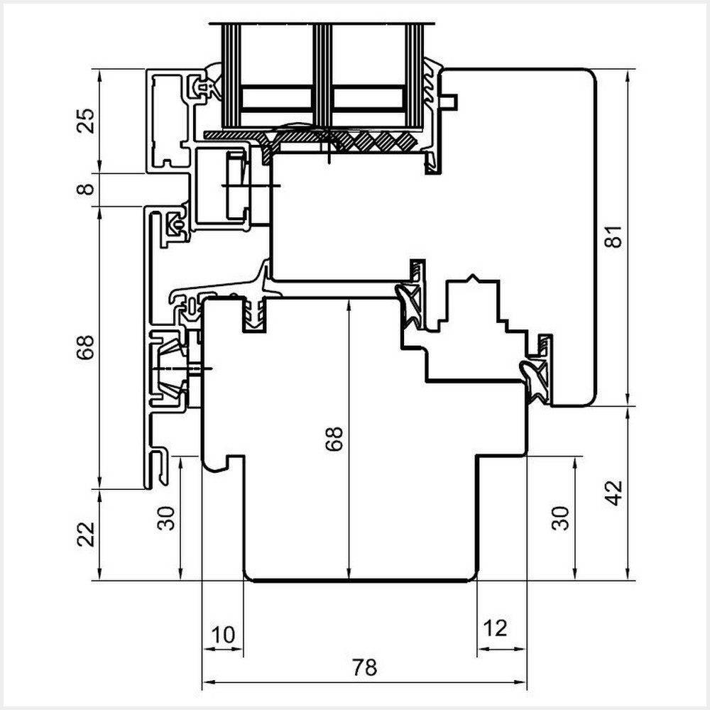
fenstermaxx-drutex-softline-78-rahmen-mit-fluegel-484

Softline 78

mehr erfahren
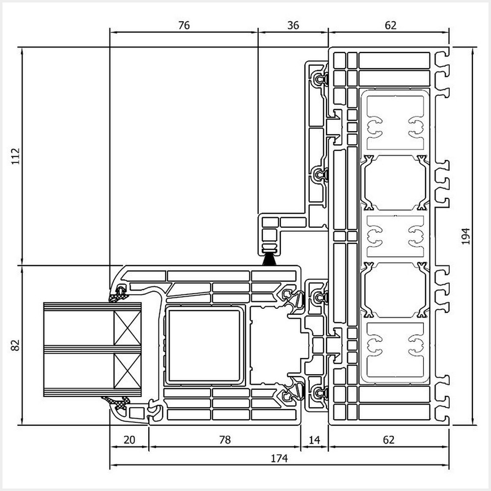
fenstermaxx-drutex-softline-88-rahmen-mit-fluegel-499

Softline 88

mehr erfahren
fenstermaxx-drutex-mb-45-fenster-schnitt-k415219x-k430030x

MB-45

mehr erfahren
fenstermaxx-drutex-mb-70-fenster-schnitt-wasserschenkel-k518102x-k518331x

MB-70

mehr erfahren
fenstermaxx-drutex-mb-70hi-fenster-schnitt-wasserschenkel-k518102x-k518331x

MB-70 HI

mehr erfahren
fenstermaxx-drutex-mb-86si-pfosten-dreh-kipp-fest-k431623x-k718712x-k718652x-k431621x

MB-86 SI

mehr erfahren
fenstermaxx-drutex-duoline-68-fenster-schnitt-standardfalz-76

Duoline-68

mehr erfahren
fenstermaxx-drutex-duoline-78-fenster-schnitt-standardfalz-85

Duoline-78

mehr erfahren
fenstermaxx-drutex-duoline-88-fenster-schnitt-standardfalz-94

Duoline-88

mehr erfahren
fenstermaxx-drutex-aufsatzrollladen-215mm-iglo-5-fenster-revision-seite-12

Aufsatzrollladen RN

mehr erfahren
fenstermaxx-drutex-vorbaurollladen-45_-sk-137mm-501

Vorbaurollladen RA

mehr erfahren

Ihre Fenster mit allen Details und technischen Zeichnungen

Die Qualitätsunterschiede der verschiedenen Profile sieht man oft nur in den Detailzeichnungen des Fensters. In den Zeichnungen können Sie außerdem nachvollziehen, welche Mechanismen an welcher Stelle wirken. Damit auch wirklich jedes Detail Ihrer Fenster Ihren Vorstellungen entspricht, stehen hier sämtliche Fenster-Zeichnungen, CAD-Pläne und Profil-Querschnitte für alle Fenster-Profilsysteme für Sie zur Verfügung.

In den Detailzeichnungen und Profilschnitten sind die exakten Abmessungen sind für jedes Modell einsehbar. So können Sie die Montage problemlos auf den Millimeter genau planen.

Unter den technischen Zeichnungen finden Sie außerdem Informationen und Maße zu Zusatzsystemen wie Fensterbankanschlussprofile, Kopplungen oder Rahmenverbreiterungen. Auch Rollläden haben wir für Sie ins kleinste Detail beschrieben, damit Sie alles passend einstellen können. Ob Holz, Kunststoff oder Aluminium:Für jedes Material steht eine PDF-Datei zum Download zur Verfügung. Für Rückfragen und weitere Details stehen wir Ihnen gerne telefonisch oder per E-Mail zur Verfügung.Gehen Sie mit Planungssicherheit an Ihr Bauprojekt und führen Sie es zum Erfolg!

Sorgfältig geplant und gut beraten zum Ziel

Spontanes Umplanen oder schnelles Improvisieren sind bei der Durchführung eines Bauprojektes an der Tagesordnung. Denn überall kann etwas schief gehen oder äußere Einflüsse erfordern eine Neuplanung. Überlassen Sie bei den Fenstern besser nichts dem Zufall, denn sie tragen maßgeblich zu einem angenehmen Raumklima und letztlich zum Wohlbefinden in Ihrem eigenen Heim bei.

Wir lassen Ihre Fenster ganz nach Ihren Wünschen produzieren. Sie sind individuell auf Ihre Bedürfnisse abgestimmt. Wie ärgerlich wäre es, wenn die Planung für Ihre Fenster bei der Anlieferung endet und beim Einbau etwas nicht passt? Nachträgliche Änderungen sind meist schwierig oder sogar unmöglich und eine neue Bestellung wird nötig. Mit den Profilschnitten und Detailzeichnungen der Fenster können Sie einem solchen Malheur schon in der Planungsphase vorbeugen.

Wir stellen Ihnen genaue Detailzeichnungen aller Profile zur Verfügung, damit Sie die Fenster und ihre Zusatzsysteme lückenlos und bis ins Detail planen können. In unserem Online-Konfigurator können Sie dann bei der Bestellung Ihrer Fenster alle Maße und Ausstattungen passgenau nach Ihren Anforderungen einstellen. Sie sind sich nicht sicher, welche Maße Sie benötigen? Der Erfolg Ihres Bauprojektes ist uns wichtig. Deshalb stehen wir Ihnen bei Fragen und Problemen zum Thema Fenster, ihre Passformen und den Einbau gern zur Verfügung. Kontaktieren Sie uns, damit wir Ihre Fragen klären können.

bg=“9484″ bg_size=“original“ padding=“90px“ padding__sm=“60px“]

Kundenservice & Beratung

Kontaktformular
[/section]